
775 000 €
Au cœur de Beausoleil, surplombant la Principauté de Monaco, nouveau projet offrant des vues exceptionnelles sur la mer, tout en restant protégé des vis-à-vis.
Les lignes architecturales sont d’écriture contemporaine et de style épuré et dynamique, avec ses volumes rectilignes et ses lignes tendues.
Les façades possèdent de larges ouvertures, permettant une grande luminosité toute l’année. Les larges balcons filants et débords de toiture sont soulignés par des horizontalités et verticalités marquées, traitements de textures, de matériaux, claustra et voiles verticaux. Ceux-ci créent des cadrages de vues sur la Méditerranée et la principauté et de larges espace.
Les toitures et les jardins, soigneusement aménagés sur les différentes restanques, proposent des espaces naturels ensoleillés et paisibles. Un véritable cœur d’îlot verdoyant et rafraîchissant a été conçu, apportant confort et bien-être aux résidents.
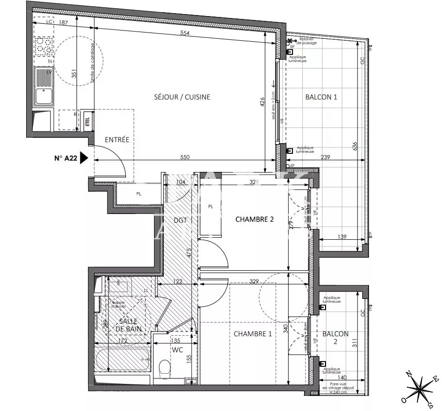
Cet appartement de 3 pièces se compose d'une entrée, un séjour avec cuisine ouverte, deux chambres, une salle d'eau, des toilettes pour les invités ainsi que deux terrasses.
Livraison prévue 1èr trimestre 2028.
64.45 m²
17.4 m²
3 pièces
2 chambres

29 Boulevard du Général Leclerc
06240 Beausoleil
+33-493783810
Ce site est protégé par reCAPTCHA et les règles de confidentialité et les conditions d'utilisation de Google s'appliquent.