
335 000 €
Au cœur de Beausoleil, surplombant la Principauté de Monaco, ce nouveau projet offre des vues exceptionnelles sur la mer, tout en préservant l’intimité des résidents.
L’architecture contemporaine se distingue par un style épuré et dynamique, avec des volumes rectilignes et des lignes tendues.
Les façades, dotées de larges ouvertures, garantissent une luminosité optimale tout au long de l’année. Les balcons filants et les débords de toiture sont mis en valeur par un jeu subtil d’horizontalités et de verticalités, ainsi que par des traitements variés des textures et des matériaux, incluant claustras et voiles verticaux. Ces éléments créent des cadrages uniques sur la Méditerranée et la Principauté, tout en offrant de vastes espaces extérieurs.
Les toitures et jardins, soigneusement aménagés sur différentes restanques, proposent des espaces naturels ensoleillés et paisibles. Un véritable cœur d’îlot verdoyant et rafraîchissant a été conçu pour offrir confort et bien-être aux résidents.
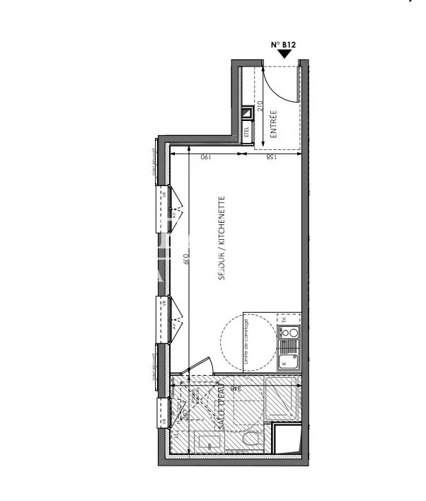
Ce studio se compose d’une entrée, d’un séjour avec cuisine ouverte ainsi qu'une salles de douche.
Des garages en sous-sol peuvent être acquis en supplément.
Livraison prévue au 1er trimestre 2028.
30.21 m²
1 pièce

29 Boulevard du Général Leclerc
06240 Beausoleil
+33-493783810
Ce site est protégé par reCAPTCHA et les règles de confidentialité et les conditions d'utilisation de Google s'appliquent.