
3 350 000 €
Dans une belle résidence située dans le quartier de Saint Roman et à seulement quelques pas des plages du Larvotto.
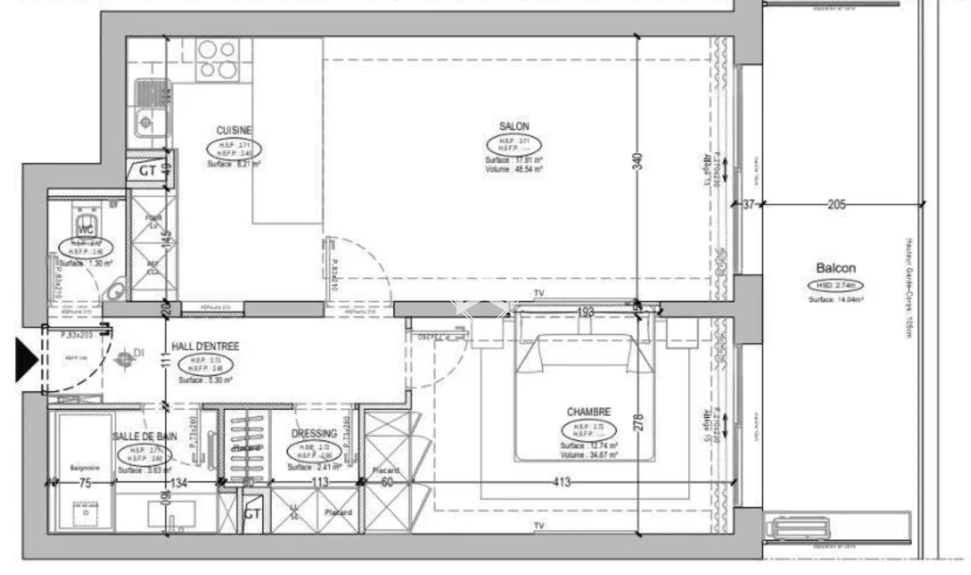
Nous vous proposons à la vente un appartement de type 2 pièces, entièrement refait composé comme suit : une entrée, un salon avec cuisine ouverte équipée, une chambre, une salle de bains et un toilette séparé.
Un emplacement de parking vient compléter ce bien.
Ce document n’a aucune valeur contractuelle: Le descriptif, les plans, et les surfaces ne sont donnés qu’à titre indicatif.
Honoraires agence 3% HT
60 m²
13 m²
2 pièces
1 chambre

36 avenue de l'Annonciade
98000 Monaco
+377-97983915

72, boulevard d’Italie
98000 Monaco
+377-92002770
Ce site est protégé par reCAPTCHA et les règles de confidentialité et les conditions d'utilisation de Google s'appliquent.