
Prix sur demande
Perché à l'entrée de Monaco, L'Exotique est l'un des projets résidentiels les plus récents et les plus prestigieux de la Principauté. Conçu par l'architecte de renom Rudy Ricciotti, ce chef-d'œuvre architectural allie élégance moderne et verdure luxuriante, offrant une expérience de vie unique où le luxe contemporain rencontre la beauté naturelle. L'Exotique se distingue par sa façade en forme de vague, ses vastes terrasses et ses fenêtres allant du sol au plafond, permettant aux résidents de profiter de vues panoramiques à couper le souffle sur la mer Méditerranée, le rocher de Monaco et l'horizon de la ville. Inspirée par le riche patrimoine botanique de Monaco, la résidence est agrémentée de jardins tropicaux luxuriants, créant une oasis de sérénité au cœur de la ville.
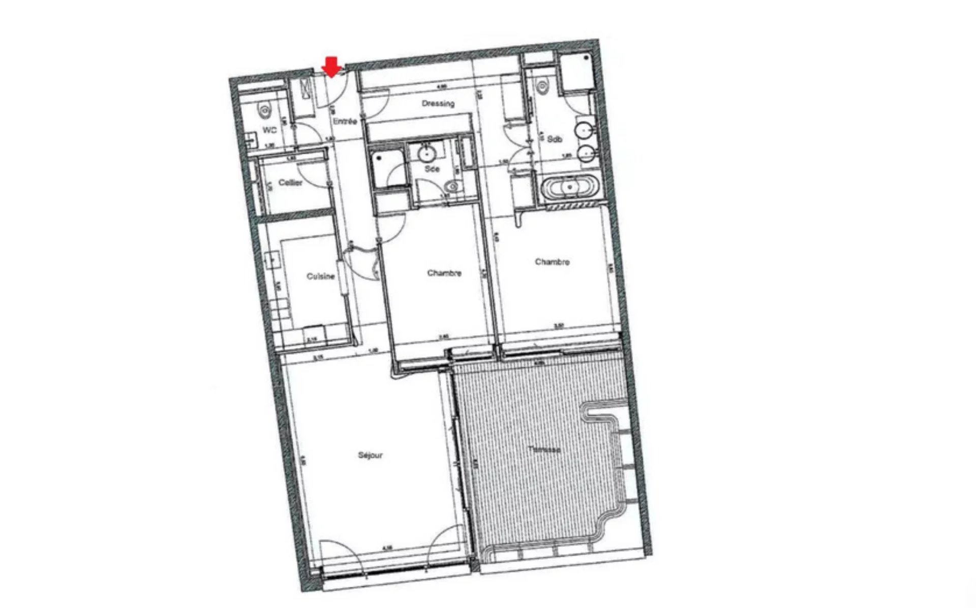
Disposition :
Hall d'entrée spacieux
Salon lumineux s'ouvrant sur la terrasse
Cuisine séparée entièrement équipée
2 chambres à coucher avec de nombreux rangements
1 salle de bain complète et 1 salle de douche
Toilettes d'invités
Buanderie pratique (cave)
Parking : Une place de parking privée
Équipements modernes : Climatisation, fenêtres coulissantes et systèmes de sécurité avancés pour la tranquillité d'esprit.
Équipements du bâtiment : piscine intérieure, jardins, salle de sport, hammam et concierge 24 heures sur 24, 7 jours sur 7
Situation exclusive : Situé aux portes de Monaco, L'Exotique est l'un des développements résidentiels les plus récents et les plus prestigieux de la Principauté. Sa position privilégiée offre non seulement des vues à couper le souffle, mais permet également aux résidents de contourner le trafic monégasque pour un accès rapide et facile à l'aéroport, garantissant ainsi un confort de voyage sans faille.
Située dans le quartier recherché du Jardin Exotique, cette résidence offre à la fois la tranquillité et la proximité des attractions animées de Monaco. Le quartier bénéficie d'une végétation luxuriante, d'un accès facile aux commodités locales et d'une vue incomparable sur la Méditerranée.
125 m²
31 m²
2 chambres

32 bis bd de Belgique
98000 Monaco
+377-98988671

63 ter boulevard du Jardin Exotique
98000 Monaco
+377-98988683

32 Bd de Belgique
98000 Monaco
+377-93250300

56 Bd du Jardin Exotique
98000 Monaco
+377-98984860

56 bis Bd du Jardin Exotique
98000 Monaco
+377-98988006
Ce site est protégé par reCAPTCHA et les règles de confidentialité et les conditions d'utilisation de Google s'appliquent.