
3.800.000 €
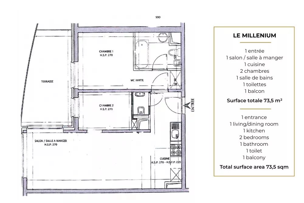
Proponiamo in vendita questo affascinante appartamento di 2 locali trasformato in 3 locali, situato ai piani alti della prestigiosa residenza Le Millenium, idealmente posizionata tra i rinomati quartieri residenziali del Jardin Exotique e di Fontvieille, nel cuore del Principato di Monaco.
Con una superficie totale di 73 mq, l’appartamento gode di un’ottima esposizione e offre una vista aperta sulla città, con scorcio sul mare. Dispone inoltre di uno spazio esterno di 13 mq, allestito come terrazza, accessibile sia dal soggiorno che da una delle camere da letto – perfetto per godere del clima mediterraneo.
La disposizione interna è la seguente: ingresso, luminoso soggiorno con cucina a vista completamente attrezzata, una camera da letto principale, una cameretta/studio, un bagno con WC, WC per ospiti, terrazza ben esposta.
La residenza offre un alto livello di sicurezza, grazie alla presenza di un portiere, e gode di accesso diretto al quartiere di Fontvieille tramite un ascensore pubblico situato proprio di fronte all’edificio – per una vita quotidiana più agevole.
Completano la proprietà un posto auto privato nel garage sotterraneo e una cantina asciutta e sicura, per un immobile raro che unisce comfort, sicurezza e qualità della vita in un ambiente residenziale tranquillo e molto ricercato.
60 m²
2 locali
2 camere

42 Quai Jean-Charles Rey
98000 Monaco
97770929

22 Quai Jean-Charles Rey
98000 Monaco
+377-97773729

Quai des Sanbarbani
98000 Monaco
+377-97773015

7 Av. des Castelans
98000 Monaco
+377-92054021

23 avenue des Papalins
98000 Monaco
+377-92059000

5 avenue des Guelfes
98000 Monaco
+377-98984765

7 Promenade Honoré 2
98000 Monaco
+377-98988675

7 Allée Lazare Sauvaigo
98000 Monaco
+377-98988672

3 Prom. Honoré II
98000 Monaco
+377-97984776

7, Avenue des Ligures
98000 Monaco
+377-97983576

2 avenue des Eucalyptus
98000 Monaco
+377-92059999

11 terrasses de Fontvieille, 98000, Monaco
98000 Monaco
+377-98984150
Questo sito è protetto da reCAPTCHA e si applicano le norme sulla privacy e i termini di servizio di Google.